全球最大的博彩平台
全球最大的博彩平台政府门户网站
无障碍浏览
长者版
全球最大的博彩平台自然资源局
智能搜索
单位全球最大的博彩平台
组织机构
政务公开
政府信息公开指南
政府信息公开平台
政府信息公开工作年度报告
政府信息依申请公开
重点领域信息公开
网上办事
互动交流
不动产登记专栏
公告公示
办事指南
数据公开
尽职调查
答问知识库
投诉建议
规划公示
当前位置:
全球最大的博彩平台
>
工作机构
>
全球最大的博彩平台自然资源局
>
规划公示
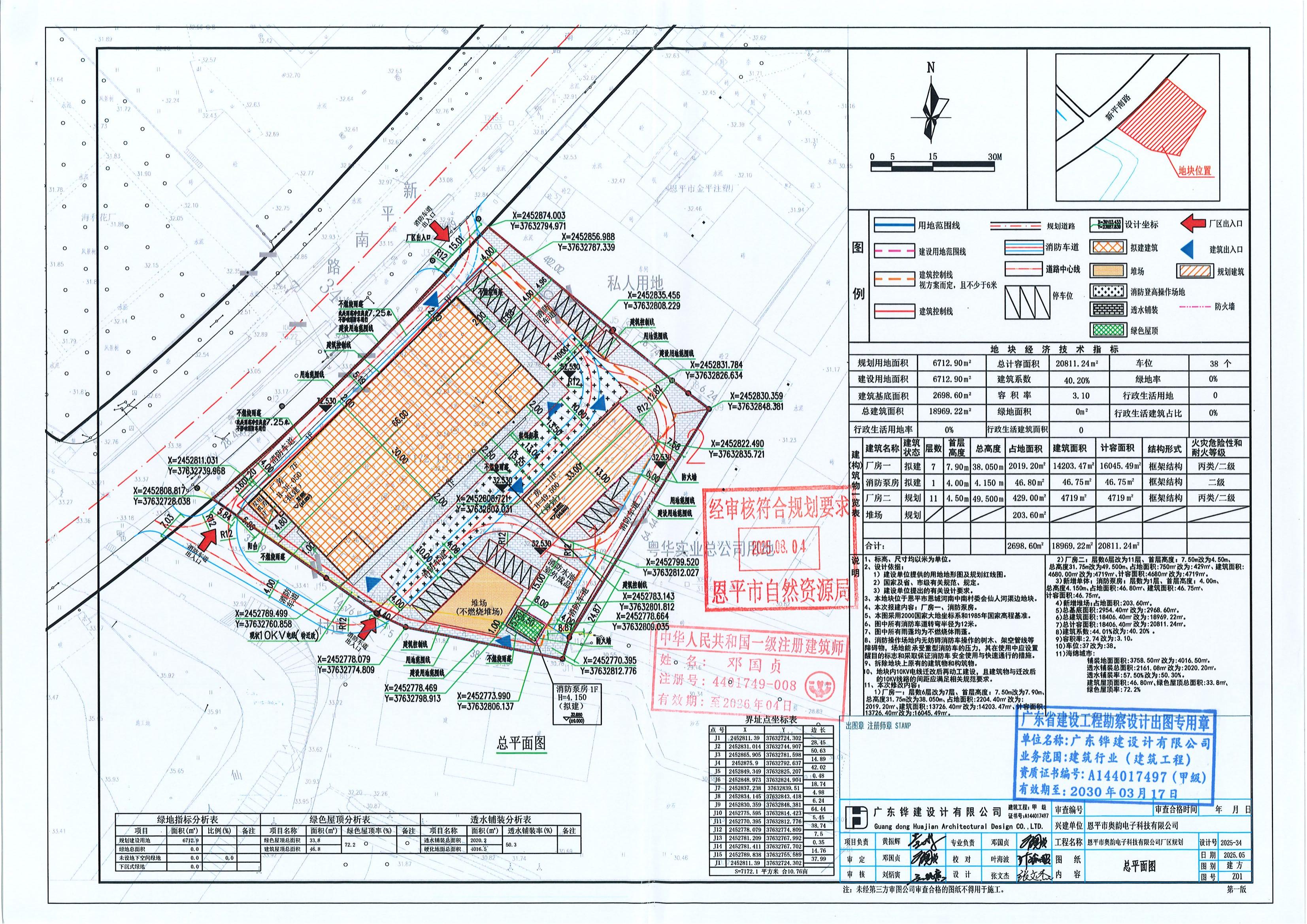
[批后公告] 全球最大的博彩平台恩城河南中南村委会仙人河渠边(全球最大的博彩平台奥韵电子科技有限公司)(厂房一、消防泵房)
发布日期:2025-08-08
来源:本网
作者:
【字体:
大
中
小
】
全球最大的博彩平台政务
微信公众号
全球最大的博彩平台政务
官方微博
版权所有:全球最大的博彩平台 主办:全球最大的博彩平台办公室
站点地图
联系方式
网站标识码:4407850057
ICP备案号:粤ICP备05085446号
粤公网安备 44078502000006号
中文博彩平台
全球最大的博彩平台
正规博彩平台
博彩网站
娱乐城平台
世界杯投注官网
娱乐城平台
美高梅娱乐城
威尼斯人平台
博彩平台推荐
YAYUN亚云体育官方网站
亚云体育