全球最大的博彩平台
全球最大的博彩平台政府门户网站
无障碍浏览
长者版
全球最大的博彩平台自然资源局
智能搜索
单位首页
组织机构
政务公开
政府信息公开指南
政府信息公开平台
政府信息公开工作年度报告
政府信息依申请公开
重点领域信息公开
网上办事
互动交流
不动产登记专栏
公告公示
办事指南
数据公开
尽职调查
答问知识库
投诉建议
规划公示
当前位置:
首页
>
工作机构
>
全球最大的博彩平台自然资源局
>
规划公示
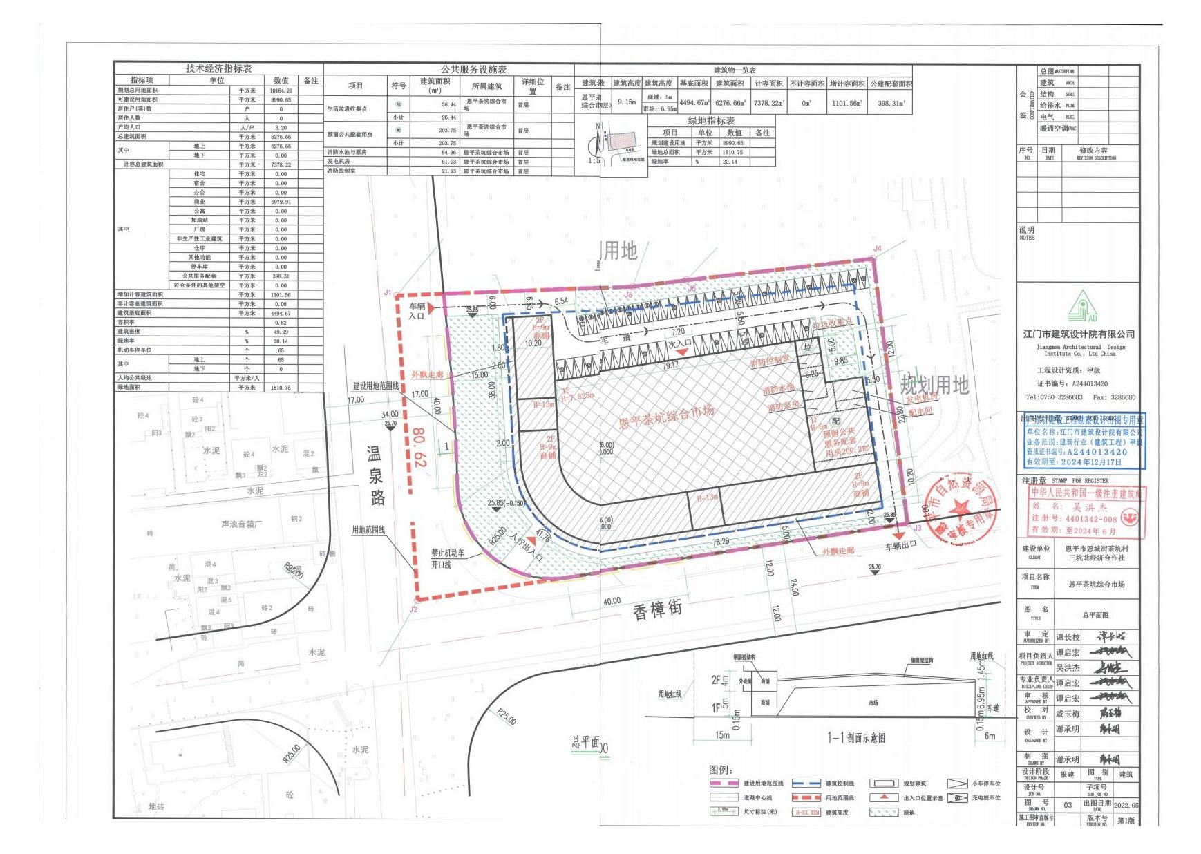
【批后公告】全球最大的博彩平台恩城街道办事处茶坑村民委员会三坑北经济合作社(石美龙)地块
发布日期:2022-11-15
来源:全球最大的博彩平台自然资源局
作者:
【字体:
大
中
小
】
全球最大的博彩平台政务
微信公众号
全球最大的博彩平台政务
官方微博
版权所有:全球最大的博彩平台 主办:全球最大的博彩平台办公室
站点地图
联系方式
网站标识码:4407850057
ICP备案号:粤ICP备05085446号
粤公网安备 44078502000006号